ГОСТ 2.310-68
МЕЖГОСУДАРСТВЕННЫЙ СТАНДАРТ
ЕДИНАЯ СИСТЕМА КОНСТРУКТОРСКОЙ ДОКУМЕНТАЦИИ
НАНЕСЕНИЕ НА ЧЕРТЕЖАХ ОБОЗНАЧЕНИЙ ПОКРЫТИЙ,
ТЕРМИЧЕСКОЙ И ДРУГИХ ВИДОВ ОБРАБОТКИ
Москва
Стандартинформ
2007
МЕЖГОСУДАРСТВЕННЫЙ СТАНДАРТ
Единая система конструкторской документации
НАНЕСЕНИЕ НА ЧЕРТЕЖАХ
ОБОЗНАЧЕНИЙ ПОКРЫТИЙ, ТЕРМИЧЕСКОЙ
И ДРУГИХ ВИДОВ ОБРАБОТКИ
Unified system for design documentation.
Marking of designations of coverings, heat treatment and
other types of treatment on engineering drawings
ГОСТ
2.310-68
Дата введения 01.01.71
Настоящий стандарт устанавливает правила нанесения на чертежи изделий всех отраслей промышленности обозначений покрытий (защитных, декоративных, электроизоляционных, износоустойчивых и т. п.), а также показателей свойств материалов, получаемых в результате термической и других видов обработки (химико-термической, наклепа и т. п.).
(Измененная редакция, Изм. № 3).
1. ПРАВИЛА НАНЕСЕНИЯ ОБОЗНАЧЕНИЙ ПОКРЫТИЙ
1.1. Обозначение покрытия - по ГОСТ 9.306 и ГОСТ 9.032 или отраслевому стандарту или все данные, необходимые для выполнения нестандартизованного покрытия, приводят в технических требованиях чертежа после слова «Покрытие».
1.2. В технических требованиях чертежа после обозначения покрытия приводят данные о материалах покрытия (марку и обозначение стандарта или технических условий), указанных в обозначении.
1.1, 1.2. (Измененная редакция, Изм. № 1).
1.3. (Исключен, Изм. № 1).
1.4. Если на все поверхности изделия должно быть нанесено одно и то же покрытие, то запись делают по типу: «Покрытие...».
1.5. Если должны быть нанесены покрытия на поверхности, которые можно обозначить буквами или однозначно определить (наружная или внутренняя поверхности и т. п.), то запись делают по типу:
«Покрытие поверхностей А... »; «Покрытие наружных поверхностей ... ».
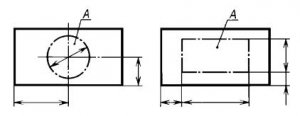
1.6. При нанесении одинакового покрытия на несколько поверхностей их обозначают одной буквой и запись делают по типу: «Покрытие поверхностей А ...» (черт. 1).
1.7. При нанесении различных покрытий на несколько поверхностей изделия их обозначают разными буквами (черт. 2) и запись делают по типу: «Покрытие поверхности А... , поверхностей Б ... ».
1.8. Если одно и то же покрытие наносят на большее количество поверхностей изделия, а на остальные поверхности наносят другое покрытие или их оставляют без покрытия, то последние обозначают буквами (черт. 3) и запись делают по типу: «Покрытие поверхности А... , остальных...» или «Покрытие..., кроме поверхности А».

Черт. 1

Черт. 2

Черт. 3
1.9. Если необходимо нанести покрытие на поверхность сложной конфигурации или на часть поверхности, которую нельзя однозначно определить, то такие поверхности обводят штрихпунктирной утолщенной линией на расстоянии 0,8 ... 1 мм от контурной линии, обозначают их одной буквой и проставляют размеры, определяющие положение этих поверхностей; запись делают по типу: «Покрытие поверхности А...» (черт. 4).
Размеры, определяющие положение поверхности, на которую должно быть нанесено покрытие, допускается не проставлять, если они ясны из чертежа (см. черт. 4а).
(Измененная редакция, Изм. № 2).
1.10. Участки поверхности, подлежащие покрытию, отмечают, как показано на черт 5, с указанием размеров, определяющих положение этих участков.

Черт. 4

Черт. 5
2. ПРАВИЛА НАНЕСЕНИЯ ПОКАЗАТЕЛЕЙ СВОЙСТВ МАТЕРИАЛОВ
2.1. На чертежах изделий, подвергаемых термической и другим видам обработки, указывают показатели свойств материалов, полученных в результате обработки, например: твердость (HRC, HRB, HRA, HB, HV), предел прочности (sв), предел упругости (sу), ударная вязкость (aк) и т. п.
Глубину обработки обозначают буквой h.
Величины глубины обработки и твердости материалов на чертежах указывают предельными значениями: «от ... до», например: h 0,7 ... 0,9; 40 ... 46 HRC.
В технически обоснованных случаях допускается указывать номинальные значения этих величин с предельными отклонениями, например, h 0,8±0,1; (43±3)HRC.
Допускается указывать значения показателей свойств материалов со знаками ? или ? например: sв ?. 1500 кгс/см2, твердость ?. 780 HV и т. п.
2.2. Допускается на чертежах указывать виды обработки, результаты которых не подвергаются контролю, например, отжиг, а также виды обработки, если они являются единственными, гарантирующими требуемые свойства материала и долговечность изделия. В этих случаях наименование обработки указывают словами или условными сокращениями, принятыми в научно-технической литературе (черт. 6, 7).
2.1, 2.2. (Измененная редакция, Изм. № 2, 4).
2.3. При необходимости в зоне требуемой твердости указывают место испытания твердости (черт.8).

Черт. 6

Черт. 7

Черт. 8
2.4. Если все изделие подвергают одному виду обработки, то в технических требованиях делают запись: «40 ... 45 HRC» или «Цементировать h 0,7 ... 0,9 мм; 58 ... 62 HRC» или «Отжечь» и т. п.
2.5. Если большую часть поверхностей изделия подвергают одному виду обработки, а остальные поверхности - другому виду обработки или предохраняют от нее, то в технических требованиях делают запись по типу: «40 ... 45 HRC, кроме поверхности А» (черт. 9) или «30 ... 35 HRC, кроме места, обозначенного особо» (черт. 10).

Черт. 9

Черт. 10
2.6. Если обработке подвергают отдельные участки изделия, то показатели свойств материала и, при необходимости, способ получения этих свойств указывают на полках линий-выносок, а участки изделия, которые должны быть обработаны, отмечают штрихпунктирной утолщенной линией, проводимой на расстоянии 0,8... 1 мм от них, с указанием размеров, определяющих поверхности (черт. 11, 12).

Черт. 11

Черт. 12
Размеры, определяющие поверхности, подвергаемые обработке, допускается не проставлять, если они ясны из данных чертежа (черт. 13, 14).
2.7. Поверхности изделия, подвергаемые обработке, отмечают штрихпунктирной утолщенной линией на той проекции, на которой они ясно определены (черт. 15).

Черт. 13

Черт. 14

Черт. 15
Допускается отмечать эти поверхности и на других проекциях, при этом надпись с показателями свойств материала, относящимися к одной и той же поверхности, наносят один раз (черт. 16).
2.8. При одинаковой обработке симметричных участков или поверхностей изделия отмечают штрихпунктирной утолщенной линией все поверхности, подвергаемые обработке, а показатели свойств материала указывают один раз (черт. 13, 17).

Черт. 16

Черт. 17
2.4-2.8. (Измененная редакция, Изм. № 2, 4).
2.9. При наличии на изделии участков поверхностей с различными требованиями к свойствам материала эти требования указывают отдельно для каждого участка (см. черт. 11, 12).
2.10. Если надписи с указанием свойств материала и размеры, определяющие поверхности, подвергаемые обработке, затрудняют чтение чертежа, то допускается приводить их на дополнительном упрощенном изображении.
2.9, 10. (Измененная редакция, Изм. № 4).
2.11. При обработке поверхностей или участков изделия, определяемых термином или техническим понятием (например, рабочая часть или хвостовик режущего инструмента, поверхности зубьев, зубчатого колеса или поверхности, обозначенные буквами, и т. п.), допускается (если это не приведет к неоднозначному пониманию чертежа) не отмечать их штрихпунктирной утолщенной линией, а в технических требованиях делать запись по типу: «Хвостовик h 0,8 ... 1 мм; 48 ... 52 HRC». «Поверхность А-45... 50 HRC».
(Измененная редакция, Изм. № 2, 4).
ИНФОРМАЦИОННЫЕ ДАННЫЕ
1. РАЗРАБОТАН И ВНЕСЕН Комитетом стандартов, мер и измерительных приборов при Совете Министров СССР
2. УТВЕРЖДЕН И ВВЕДЕН В ДЕЙСТВИЕ Постановлением Комитета стандартов, мер и измерительных приборов при Совете Министров СССР от 05.06.68 № 830
3. ВЗАМЕН ГОСТ 2940-63 в части пп. 15-17
4. ССЫЛОЧНЫЕ НОРМАТИВНО-ТЕХНИЧЕСКИЕ ДОКУМЕНТЫ
Обозначение НТД, на который дана ссылка
Номер пункта
ГОСТ 9.032-74
1.1
ГОСТ 9.306-85
1.1
5. Изменение № 4 принято Межгосударственным Советом по стандартизации, метрологии и сертификации (протокол № 15 от 28.05.99)
Наименование государства
Наименование государственного
органа по стандартизации
Азербайджанская Республика
Азгосстандарт
Республика Армения
Армгосстандарт
Республика Беларусь
Госстандарт Беларуси
Грузия
Грузстандарт
Республика Казахстан
Госстандарт Республики Казахстан
Киргизская Республика
Киргизстандарт
Республика Молдова
М олдовастандарт
Российская Федерация
Госстандарт России
Республика Таджикистан
Таджикгосстандарт
Туркменистан
Главная государственная инспекция Туркменистана
Республика Узбекистан
Узгосстандарт
Украина
Госстандарт Украины
6. ИЗДАНИЕ (август 2007 г.) с Изменениями № 1, 2, 3, 4, утвержденными в марте 1973 г., августе 1984 г., октябре 1987 г., январе 2000 г.
(ИУС № 4-73, 12-84, 1-88, 4-2000)
СОДЕРЖАНИЕ
1 Правила нанесения обознчений покрытий
2 Правила нанесения показателей свойств материалов


